wohnung zu verkaufen - caorle

Porto Santa Margherita

wohnung zu verkaufen - caorle
Porto Santa Margherita

Großzügige und helle Dreizimmerwohung auf zwei Ebenen. 
Im Herzen von Porto Santa Margherita, nur wenige Schritte vom Meer und der Strandpromenade entfernt, erwartet Sie eine helle, vollständig und hochwertig renovierte 3-Zimmer-Wohnung – ideal, um das Meer und Caorle das ganze Jahr über zu genießen.
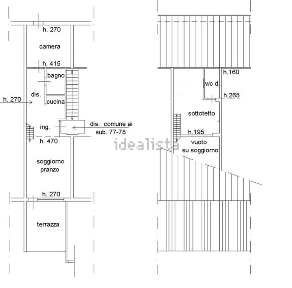
Diese großzügig geschnittene Wohnung erstreckt sich über zwei Ebenen und verfügt über zwei Schlafzimmer sowie zwei Badezimmer. Sie befindet sich in der Corso Genova, dem lebendigen Zentrum des Ortes, das auch in den Wintermonaten belebt und einladend bleibt und nur wenige Schritte vom über fünf Kilometer langen Sandstrand entfernt liegt.
In unmittelbarer Nähe, entlang baumbestandener Straßen, finden sich alle Annehmlichkeiten des täglichen Bedarfs, ohne das Auto benutzen zu müssen: Apotheke, Drogerie, Bars und Restaurants mit fangfrischem Fisch, Tabakladen, Metzgerei, Fischgeschäft, Obst- und Gemüseladen sowie der malerische Yachthafen, in dem die festgemachten Boote je nach Tages- und Abendlicht immer neue, stimmungsvolle Bilder zeichnen.
Die Wohnung empfängt Sie mit einem großzügigen und lichtdurchfluteten Open-Space-Wohnbereich von ca. 35 m² Nettofläche, umrahmt von einer großen Fensterfront, die einen herrlichen Blick auf die romantische, überdachte Terrasse von ca. 15 m² bietet – perfekt für entspannte Frühstücke oder gesellige Aperitifs mit Freunden.
Auf derselben Ebene befinden sich zudem ein vollständig renoviertes Badezimmer sowie ein klimatisiertes Schlafzimmer mit ca. 14 m². Über eine Holztreppe gelangt man zur Galerie, wo ein zweites Schlafzimmer den idealen Raum für ein befreundetes Paar oder als zusätzlicher privater und ruhiger Rückzugsort bietet. Auf der Galerie wurde außerdem ein zweites Badezimmer mit neuem Velux-Dachfenster realisiert.
Die Terrasse, das wahre Schmuckstück dieser Immobilie, blickt direkt ins Grüne sowie auf den istrischen Stein der Corso Genova und bietet den perfekten Rahmen für alle, die die Magie des Meeres zu jeder Jahreszeit erleben möchten.
Ein komfortabler, überdachter Stellplatz ist im Preis inbegriffen.
Dieser Immobilie fehlt es an nichts – außer an einem neuen Eigentümer, der sich in sie verliebt und hier seine eigene Geschichte zwischen Meer, Licht und Ruhe schreiben möchte.
Alle Angaben sind unverbindlich, insbesondere die Flächenangaben, und können Änderungen unterliegen.

Kode : 497
Verkauf/Vermietung: Verkauf
Typologie: 3 Zimmer
Region Veneto
Provinz VE
Ort Caorle
Zone Porto Santa Margherita
Q.m.: 100
Preis: 225000

xs
sm
md
lg