appartamento in vendita - caorle

Porto Santa Margherita

appartamento in vendita - caorle
Porto Santa Margherita

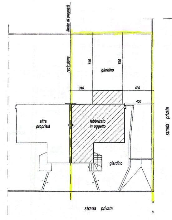
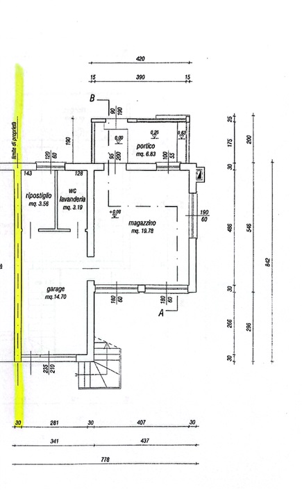
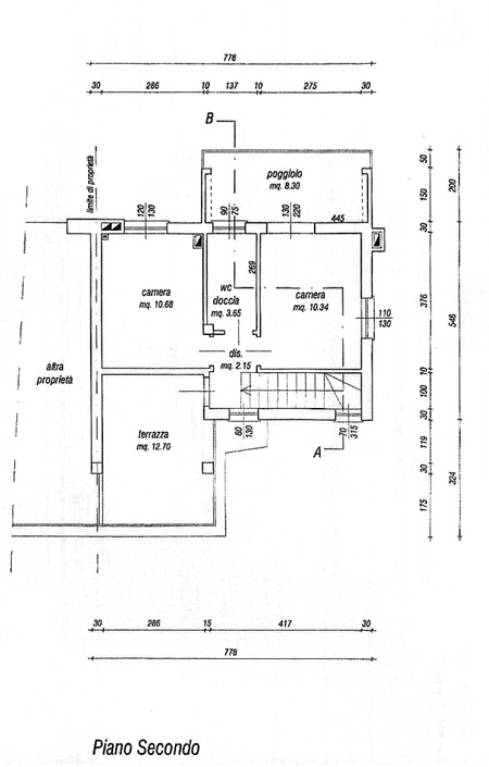
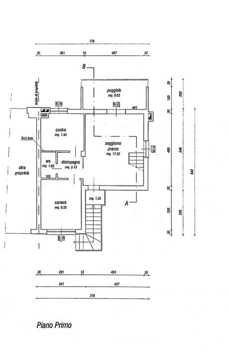
Nel cuore di Porto Santa Margherita, a Caorle, in una posizione tranquilla ma centrale e a pochi passi dalla spiaggia, proponiamo in vendita una splendida villetta bifamiliare che rappresenta un’opportunità davvero rara. La casa si trova all’interno di una traversa chiusa al traffico, accessibile esclusivamente ai residenti: un contesto riservato e silenzioso, ideale per chi desidera vivere il mare senza rinunciare alla privacy. L’immobile, libero su tre lati e caratterizzato da un’ottima esposizione a nord, sud e ovest, è avvolto dalla luce naturale durante tutto l’arco della giornata. Gli spazi generosi la rendono perfetta per famiglie o per chi è alla ricerca di ambienti ampi e confortevoli, da modellare secondo le proprie esigenze. All’esterno, un grande giardino abbraccia la proprietà, creando un’oasi verde dove rilassarsi, mentre i balconi offrono piacevoli affacci per godersi il sole e la quiete del contesto.
La casa è completamente da ristrutturare: una caratteristica che diventa un vero punto di forza per chi desidera personalizzare ogni dettaglio e trasformarla nella propria dimora ideale, valorizzandone le eccellenti potenzialità.A completare la proprietà, posti auto e garage garantiscono praticità e comodità nella vita quotidiana.Una soluzione unica nel suo genere, pronta a diventare la casa che hai sempre immaginato.Contattaci per prenotare una visita.       (Le prima tre immagini sono dei Rendering dimostrativi, non sono foto reali)

Codice : 508
Tipo Offerta: Vendita
Tipo immobile: 5 Stanze + Cucina
Regione Veneto
Provincia VE
Località Caorle
Zona Porto Santa Margherita
Mq.: 150
Prezzo: 308000

xs
sm
md
lg