appartamento in vendita - eraclea

appartamento in vendita - eraclea

Villa singola - Unifamiliare - con ampio giardino, a pochissimi chilometri da Caorle!

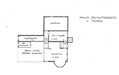
Vendiamo ampia villa unifamiliare situata in una zona tranquilla, a pochi passi dal fiume e dalla darsena di Brian, l'ideale per gli amanti della nautica. Con un ampio giardino circostante, questo immobile offre un'ottima opportunità per chi ama vivere all'aria aperta. La villa, costruita nel 1984, si sviluppa su più piani e presenta spazi interni ben distribuiti, con una zona giorno che include un ampio salone e una cucina abitabile perfetta per cene in famiglia.
La zona notte è composta da cinque stanze e tre bagni, garantendo un ottimo comfort e privacy. Inoltre dispone di un ampia taverna, ideale per feste con amici. Garage doppio e posti auto esterni. Grande cantina, magazzino e un locale caldaia, rendendo questo immobile ottimo per ampie famiglie, ideale anche come investimento, per B&B o appartamenti per locazioni turistiche.
Situata a pochi chilometri dalla zona di espansione di Altanea e vicina alla Marina di Porto Santa Margherita, questa proprietà è perfetta per chi cerca una residenza tranquilla ma comoda a tutto. 
Con la possibilità di suddividere l'immobile in diverse unità separate, rappresenta anche un'interessante opportunità di investimento. 
Non perdere l'occasione di personalizzare questo spazio secondo i tuoi gusti! 
Contattaci per una visita. Informati. Non perdere l'occasione.

Codice : 516
Tipo Offerta: Vendita
Tipo immobile: 6 Stanze + Cucina
Regione Veneto
Provincia VE
Località Eraclea
Zona
Mq.: 240
Prezzo: 415000

xs
sm
md
lg